businesshouse liechtenstein

Discuss or ask critique about your current works
Forum rules
Important notice: All artwork submitted on our public gallery forums gallery forums may or may not be used by OTOY for publication on our website gallery.
If you do not want us to publish your art, please mention it in your post clearly. (put a very red small diagonal cross in the left right corner of the image)
Any images already published on the gallery will be removed if the original author asks us to do so.
We recommend placing your credits on the images so you benefit from the exposure too, and use a minimum image width of 1200 pixels, and use pathtracing or PMC. Thanks for your attention, The OctaneRender Team.


For new users: this forum is moderated. Your first post will appear only after it has been reviewed by a moderator, so it will not show up immediately.

This is necessary to avoid this forum being flooded by spam.
Post Reply
User avatar
huebner
Licensed Customer
Posts: 26
Joined: Wed Feb 29, 2012 11:38 am
Location: Zürich, Schweiz

there are some pictures of my last architectural project. it`s for a competition. because i was short in time (most of the effort was concepting the building) there is absolutely no photoshop and the rendertimes were quite short. the rendertimes would be the main reason for the noise in some areas.
its not really finalized but i hope for the actual state of the project the pictures will meet demands ;-)

grüsse aus der schweiz!
Attachments
IP10-1.jpg
perhaps interesting for you, 3d-model
perhaps interesting for you, 3d-model
perhaps interesting for you, section
perhaps interesting for you, section
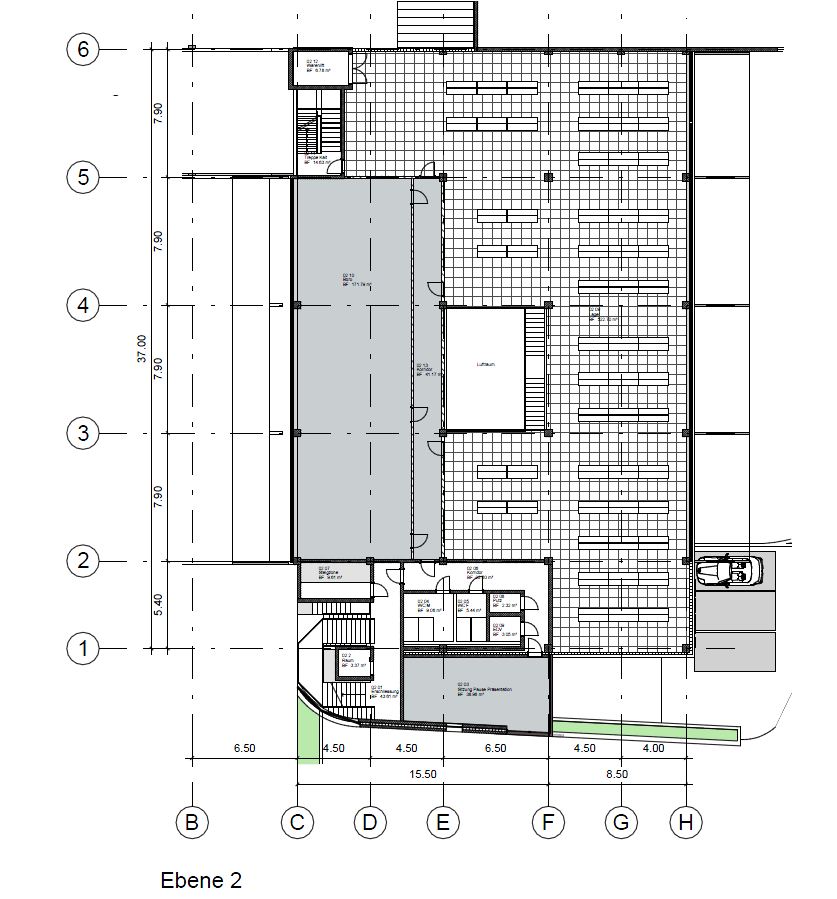
perhaps interesting for you, floorplan 04
perhaps interesting for you, floorplan 04
perhaps interesting for you, floorplan 03
perhaps interesting for you, floorplan 03
perhaps interesting for you, floorplan 02
perhaps interesting for you, floorplan 02
IP12.jpg
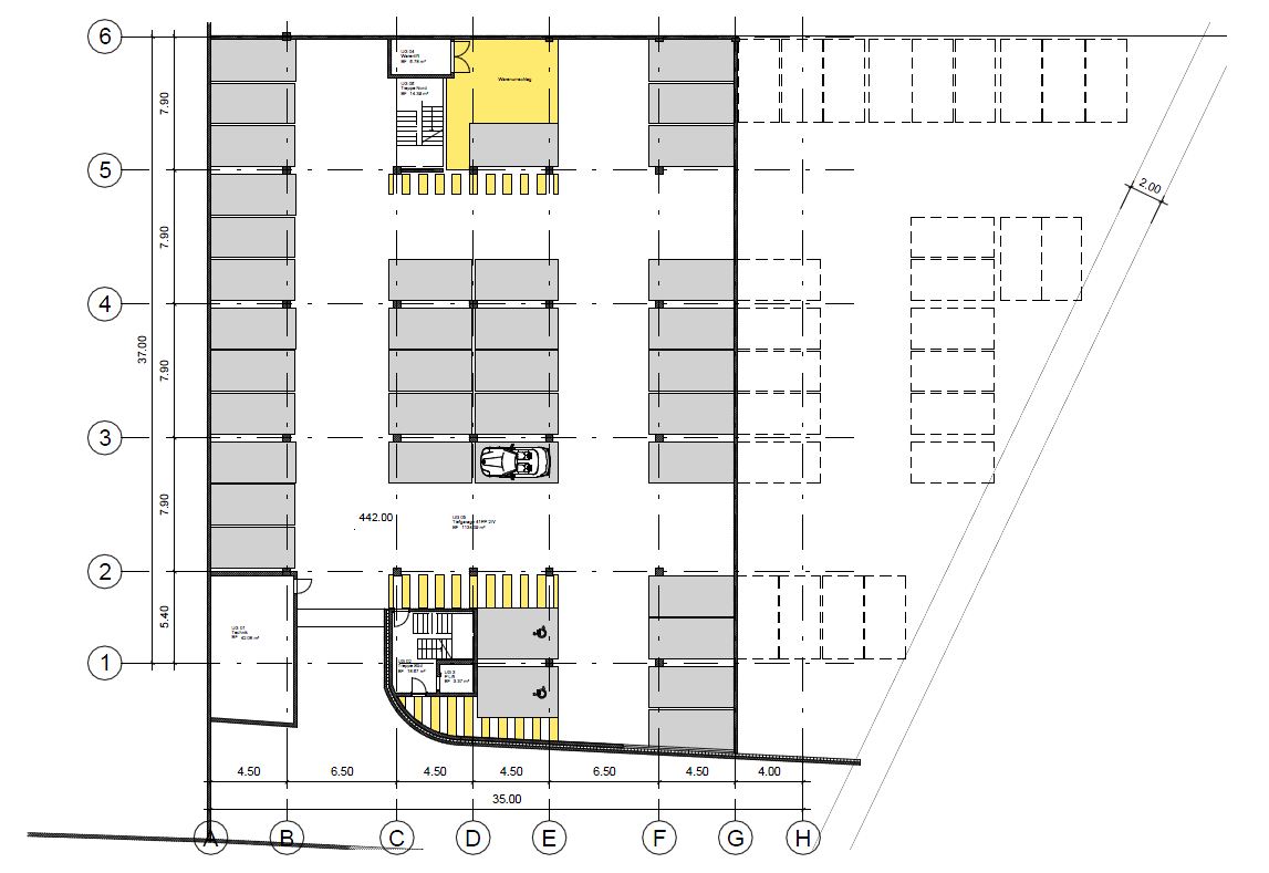
perhaps interesting for you, floorplan 01
perhaps interesting for you, floorplan 01
perhaps interesting for you, floorplan 00
perhaps interesting for you, floorplan 00
perhaps interesting for you, floorplan -1
perhaps interesting for you, floorplan -1
IP07.jpg
IP03.jpg
IP02.jpg
AP12.jpg
AP11.jpg
AP09.jpg
AP08.jpg
AP01.jpg
AP06.jpg
AP10.jpg
octaneritter equipped with 2 x gtx 680
ChrisVis
Licensed Customer
Posts: 243
Joined: Mon May 14, 2012 1:53 am
Location: Germany

Hello Huebner!

I am really impressed with the outdoor pictures!
AP08-11 look like real photos, especially when looking at it the first time!

IP10-1 is also very well done, but where does the hotspot on the right wall come from?

AP01 seems to need some texture tweaking for the concrete, maybe just darken it a bit or a little gradient? It looks a bit unnatural cause it is too flat, especially in the bottom behind the shrubs. I think you know how to tweak this. Would you mind to share your texture settings for doing a gradient on it, because I am new to octane and didn`t get too much into materials yet.

thnx a lot and keep sharing your good work,
greets from germany
C4D R15 - C4DOctane 4.0 | Win7 64 | NVIDIA 417.22 | EVGA GTX 980 Ti SC | EVGA GTX 780 Ti SC |EVGA GTX 780 Ti SC
i7 4930K 6x4.3GHz OC | 64GB | ASUS P9X79-E WS
+ Netstor Turbobox 250A | 2x EVGA GTX 780 Ti SC + 2 x Palit GTX780 Ti 3GB | all watercooled
User avatar
huebner
Licensed Customer
Posts: 26
Joined: Wed Feb 29, 2012 11:38 am
Location: Zürich, Schweiz

hello chrisvis

thnx for your input.

your are right i could get more out of materials and textures. what do you mean with gradient? texturing was made with a simple image of concrete, maybe i forgot to add a bump. perhaps thats the reason why i looks to flat.
all the pictures (about 30) were made (camera, lightsetting & rendered) in about 24hours (kepler test build and 2 x gtx 680). hope a real version for gtx 680 will come out soon. texturing was made in cinema 4d. i didn`t spent more time on materials afterwards in octane.

ip10-1 was the only picture which rendered a bit longer, overnight means about 4hours. no time for sleep a this moment ;-)
dont ask me where the hotspot comes from? maybe there is a child in the kitchen on the left playing with his torch...?
i really dont know but i think the hotspot looks interesting and i didn`t care.

here are some more pictures, you can see whole the 3d model in axo 01.
Attachments
AXO_01.jpg
AP07.jpg
AP03.jpg
octaneritter equipped with 2 x gtx 680
ChrisVis
Licensed Customer
Posts: 243
Joined: Mon May 14, 2012 1:53 am
Location: Germany

Hi Huebner,

with gradient I mean, that when looking at a concrete wall of a building in reality, (Picture AP01) the top of the Wall would definetly be a bit more brighter than the bottom of the wall next to the floor... maybe because of ambient occlusion?
I don`t know, if you would achieve this with bump mapping.
In Cinema 4D I use a normal black to white gradient in the diffuse channel, change it from U to V or diagonal, and mix it in 10%, that gives a bit more of a volumetric look, but maybe not the best way to do it.
I dont know, if this is possible with octane, maybe with the mixed material? Or you need to go into the nodes, I think there you have endless material setting capabilities, but I didnt try it yet. Just read the manual once and will have to learn a lot.

Nice to see you are working with cinema 4D too.
Did you do any animation with the plugin yet?
Would you mind to share some workflow tips?

It is also interesting to see you have 2 gtx 680. Theres a new kepler test build out since today, 2.58c. Did you try it yet? How much is the performance improvement?
I am going to invest in a GPU Rip, but am not sure at the moment if i should go with the gtx580s 3GB to have good performance right now, where I need it, or to go with GTX680s to be future proof, but have less performance today, and even maybe in the future or at least not before the next 4 month?
C4D R15 - C4DOctane 4.0 | Win7 64 | NVIDIA 417.22 | EVGA GTX 980 Ti SC | EVGA GTX 780 Ti SC |EVGA GTX 780 Ti SC
i7 4930K 6x4.3GHz OC | 64GB | ASUS P9X79-E WS
+ Netstor Turbobox 250A | 2x EVGA GTX 780 Ti SC + 2 x Palit GTX780 Ti 3GB | all watercooled
User avatar
huebner
Licensed Customer
Posts: 26
Joined: Wed Feb 29, 2012 11:38 am
Location: Zürich, Schweiz

hi chrisvis

whow, i didn't know of the new keppler release. thx for the tip, cool! try it next week.
i bought two gtx680 and was surprised afterwards when i found out that keppler is not supported. i was too fast once again...

if you ask me in octane all this light-support texturing is not needed anymore. looks physically correct & realistic without doing this. there is another reason why the wall in ap01 is bright on the bottom. it goes further down to the ramp of the garage.
octaneritter equipped with 2 x gtx 680
ChrisVis
Licensed Customer
Posts: 243
Joined: Mon May 14, 2012 1:53 am
Location: Germany

Hi huebner,

thanx for the reply, your answer to ap01 makes sense.
Yeah the whole Kepler stuff is starting to get a bit frustrating... hope there will be a huge performance boost soon or at least, when Cuda 5 comes out.
C4D R15 - C4DOctane 4.0 | Win7 64 | NVIDIA 417.22 | EVGA GTX 980 Ti SC | EVGA GTX 780 Ti SC |EVGA GTX 780 Ti SC
i7 4930K 6x4.3GHz OC | 64GB | ASUS P9X79-E WS
+ Netstor Turbobox 250A | 2x EVGA GTX 780 Ti SC + 2 x Palit GTX780 Ti 3GB | all watercooled
User avatar
mbetke
Licensed Customer
Posts: 1300
Joined: Fri Jun 04, 2010 9:12 am
Location: Germany
Contact:

Nice stuff going on here. For the noise on indoor you could do some gilm-effects with cross-processing in photoshop so it looks a bit artistic and like one of those instagram edited pictures. ;)

You only used skylight with your cut-out mountains and a sun for exteriours? or also a HDRI image?

Grüße aus Deutschland! :)
PURE3D Visualisierungen
Sys: Intel Core i9-12900K, 128GB RAM, 2x 5090 RTX, Windows 11 Pro x64, 3ds Max 2024.2
User avatar
huebner
Licensed Customer
Posts: 26
Joined: Wed Feb 29, 2012 11:38 am
Location: Zürich, Schweiz

hi mbetke

thanx for input. i like artistic look! see below ;-)
...or maybe a longer rendertime would clear up the pictures....

i didn`t use hdri, but i normally build up some neighborhood-buildings. this makes a similar effect, and also realistic reflection in windows & shadows on and beside the new building.
for me as an architect skylight is perfect because i get a idea of light situation. all in realtime at any date and any time. sometimes if necessary i can adapt the concept of the building.

the background is a photo of the building site with a simple alpha. do you know if i could do the same thing with a hdri of the whole surrounding, and then load it in occtane? and is it possible to combine it with skyligt. i think it is not possible.
Attachments
Foto_E3.jpg
Foto_E2.jpg
Foto_E1.jpg
octaneritter equipped with 2 x gtx 680
User avatar
mbetke
Licensed Customer
Posts: 1300
Joined: Fri Jun 04, 2010 9:12 am
Location: Germany
Contact:

I love shot E1. Where do you get the photo frame?
PURE3D Visualisierungen
Sys: Intel Core i9-12900K, 128GB RAM, 2x 5090 RTX, Windows 11 Pro x64, 3ds Max 2024.2
User avatar
huebner
Licensed Customer
Posts: 26
Joined: Wed Feb 29, 2012 11:38 am
Location: Zürich, Schweiz

....simple app for iphone ;)

cause i was too lazy i just took photos of my screen.
octaneritter equipped with 2 x gtx 680
Post Reply

Return to “Works In Progress”